一、 招标单位:中国科学院青藏高原研究所
二、 招标项目:慕士塔格站多功能房屋建设工程
三、 建设地点:中国科学院青藏高原研究所慕士塔格站,位于新疆阿克陶县布伦口乡境内,紧邻慕士塔格山和卡拉库里湖。
四、 建设内容:
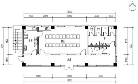
新建建筑面积为120m2的多功能房屋,单层建筑。需按招标人的要求完成主体建筑施工和装饰装修工程(见附图)。
五、 投标人资格:
1.房屋建筑工程施工总承包贰级(含)以上资质,建筑装修装饰工程专业承包贰级(含)以上资质;
2.通过相关质量管理体系认证;
3.经营活动中无行贿犯罪记录;
4.近三年具有同类型的工程业绩,具高原地区作业经验者优先。
六、报名时需提供加盖公章的以下材料复印件一套:
1.施工资质证书;
2.企业法人营业执照;
3.组织机构代码证;
4.安全生产许可证;
5.税务登记证。
七、招标人将依据报名情况来确定中标方式和合同价:集中投标报价评分或竞争性谈判。
八、报名时间、地点及联系方式:
报名时间:公告发布之日至2014年5月16日下午16:00时;
报名地点:北京市朝阳区林萃路16号院3号楼,中国科学院青藏高原研究所(邮编100101);
联 系 人:谢 营;
电 话:13426367587。
附:多功能房屋平面图
